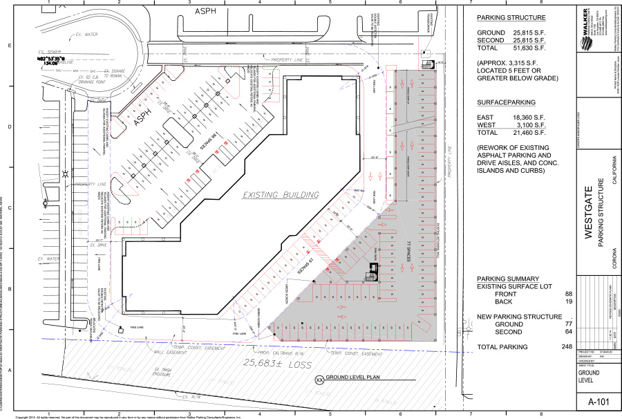
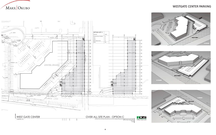
Westgate Parking Structure

Location

Corona, California

Client

UBS Realty Investors, LLC

This multi-stakeholder project required a complicated parking structure design due to various easements and other constrictions.

Marx Okubo completed the project in four phases: pre-design (initial documents review, city agency research, parking feasibility study, engagement of geotech and surveyor); design (select architect and coordinate drawings for plancheck submission); bidding (select bidding contractors, distribute bid documents, select bidder, negotiate construction contract); and construction administration (site visits, RFI review, change order review, tenant coordination during construction, project punchlist and close-out).

Marx Okubo completed the project smoothly, minimizing disruption to the tenants in the occupied office building and without significant conflicts with the adjacent freeway construction crews.

Sign up

Stay updated with Marx Okubo news and events.