banner-img
banner-img
  • Services

Constructability Reviews

gear icon

Using constructability reviews is an increasingly important element of any successful project. Marx Okubo teams are most effective as consultants to the built environment when we're included early in the process. Our role is to identify potential conflicts between disciplines and concerning items for designers to review and resolve—before they become a schedule or cost impact during construction.

Identifying your most impactful issues pre-construction.

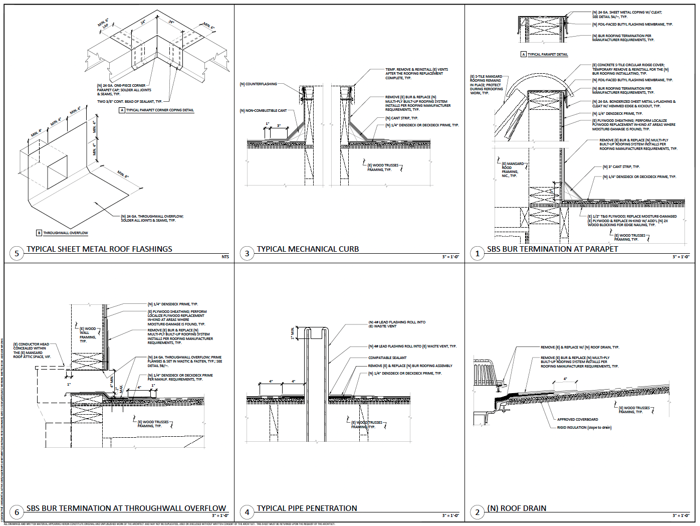
Acting as a critical set of fresh eyes and an integral extension of the design team, our licensed architects, structural engineers, mechanical engineers, and other specialists add immediate value to any project. During a review of key working drawings, specifications, soils or geotechnical reports, and other documents with respect to accepted building construction practices, our teams are highly experienced in finding hidden conflicts that may present issues further down the line. We can quickly identify significant inconsistencies in architectural, mechanical, electrical, plumbing, civil, or structural documents.

A constructability review must consider the suitability of major building systems and materials relative to the building type and location. We study sustainable features and seismic design as well, reporting about site improvements, building areas, primary construction materials/techniques, external and internal finishes, floorplan choices, and more.

Notable constructability review red flags often include details that are unworkable or not "constructable," such as an element that functions for waterproofing but might render some aspect of a property inaccessible. We can also run cost comparisons on a project and validate the construction schedule of values. Constructability reviews often roll into other services, including owner's representation or loan monitoring.

drop-left-image

Key constructability reviews services:

  • Drawings, specifications, and soil/geotechnical reports review
  • Compliance with applicable accessibility requirements
  • Construction agreement and professionals of record review
  • Opinions on contractor exclusions, allowances, special inspections, etc.
  • Project budget and construction schedule review and support

Have questions about addressing design issues before construction begins?

Sign up

Stay updated with Marx Okubo news and events.